Szeged
Belváros Földváry utca

100.000.000 Ft

274.823

Eladó irodaház/üzletház Szeged belvárosában a Dugonics tértől 2 percre a BYD gyártól 20 percre ( Földváry center point )

ID: 350254
Eladó Üzlethelyiség / Utcai bejárattal
Szeged Eladó Üzlethelyiség Földváry utcaSzeged Eladó Üzlethelyiség Földváry utcaSzeged Eladó Üzlethelyiség Földváry utcaSzeged Eladó Üzlethelyiség Földváry utcaSzeged Eladó Üzlethelyiség Földváry utcaSzeged Eladó Üzlethelyiség Földváry utcaSzeged Eladó Üzlethelyiség Földváry utcaSzeged Eladó Üzlethelyiség Földváry utcaSzeged Eladó Üzlethelyiség Földváry utca

Tulajdonságok

Elhelyezkedés 6722 Szeged
(Belváros)
Földváry utca
Tranzakció típusa Eladó
Ingatlan típusa Üzlethelyiség / Utcai bejárattalAlapterület 103 m2
Emelet FöldszintLift Nincs
Parkolás Saját parkolóExtrák Akadálymentes

Leírás



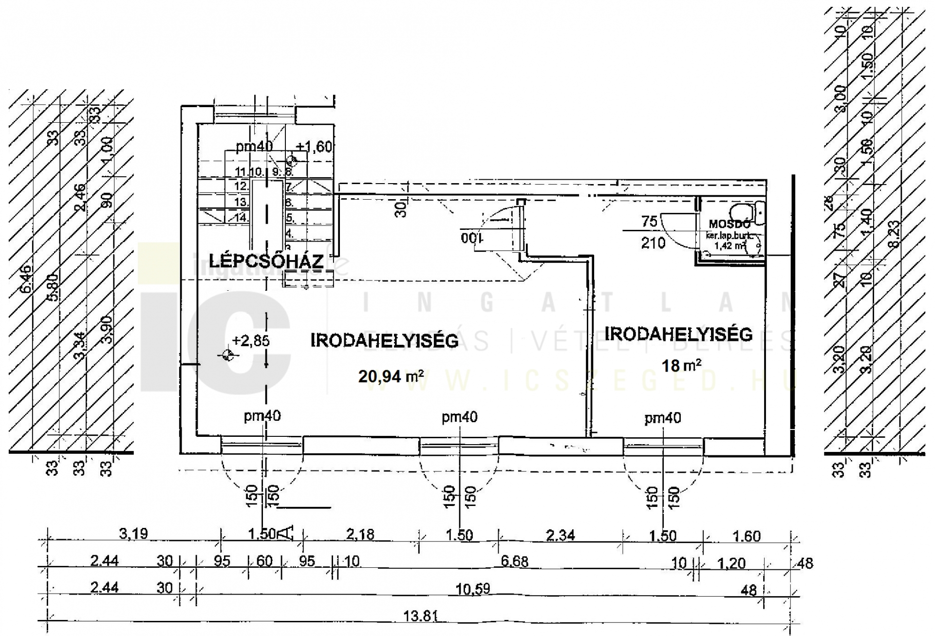
Szeged Belvárosában, a Földváry utcában eladó egy kétszintes, összesen 103 m2 alapterületű önálló irodaház/üzletház! A földszinten az utcáról nyíló kétszárnyas bejárati ajtóból az optimálisan pl. recepciónak kiszolgáló térnek helyet adó 19,11 m2-es fogadótérbe léphetünk be. A helyiség jobb oldali irányba elhaladva a hatalmas előtérből egy saját vizesblokkal rendelkező helyiségbe léphetünk be, amely 22,3 m2-es területnagyságú és saját utcára néző ablakkal rendelkezik. Ennek az irodának a vizesblokkja tartalmaz kézmosó előteret (1,58 m2) és tusolót, valamint WC-t és bidét magában foglaló elválasztott teret (3,68 m2). Az emeleti szintre fogadóból a balra fordulva a 8,5 m2-es közlekedőn (teakonyhán) keresztül juthatunk fel, amely szintén utcára néző ablakkal ellátott. Az emeletre vezető lépcső mellett rendelkezésre áll szociális blokk, amely különválasztott térben WC-nek (1,03 m2) és kézmosónak ad helyet (1,03 m2). A lépcsőről felérve az emeletre először egy nagyobb méretű helységbe (20,94 m2) lép be a közlekedő személy, ahol két utcára néző ablak található. Itt továbbá igény szerint a vízvételi lehetőség kialakításának feltételei adottak. A nagyobb méretű irodából a belépést követően bal oldali irányba haladva egy másik kisebb méretű helyiségbe (18 m2) juthat el a komplexumban közlekedő, amelynek szintén saját utcára néző ablaka és elkülönített szociális helysége van (WC-vel és mosdóval) (1,42 m2).

Az irodaház/üzletház klimatizált, jól szeparálható terekkel, hőszigetelt üvegezésű műanyag homlokzati nyílászárókkal, szalagfüggöny árnyékolókkal rendelkezik. Az épületben megtalálható burkolattípusok: mázas kerámialap, szőnyegpadló. Belső felületképzések esetén: vakolt, diszperziós festékkel festett falak, a vizes helyiségek részben csempézettek. Van saját parkolója. Fűtésrendszere: kombi kazán (cirkó gázfűtés) lemezradiátor hő leadókkal. A létesítmény fenntartása relatíve alacsony rezsiköltséggel oldható meg. Az épület teljesen felújított. Az internetelérés megoldott és az épület riasztórendszerrel, belső informatikai hálózattal, kaputelefonnal rendelkezik. Elhelyezkedése kedvező: Szeged Belvárosában a Dugonics tértől pár méterre a Széchenyi tértől, azaz a központtól 650 m-re. Városközponttól, egyetemektől, közigazgatási intézményektől pár percre. Könnyű megközelíthetőség, kiváló tömegközlekedés (busz, villamos, troli), ezek megállói 250 m-en belül vannak. Éttermek, szállodák, kávézók boltok (ALDI) szintén 250 m-es sugarú körön belül találhatók. A megközelíthetőség kétsávos aszfalt burkolatú útról, kerékpárútról és járdán lehetséges. Közvetlen környezetében vegyes funkciójú társasházak, családi házak, kereskedelmi és szolgáltató egységek, oktatási intézmények, áruházak és szálláshelyek találhatók. A terület közművesítettsége teljes, mivel a városi vezetékes víz-, gáz- és elektromos energiaellátás mellett a zártrendszerű csapadékvíz- és szennyvízelvezető csatornahálózat is kiépítésre került. Az ingatlan területére a rendelkezésre álló közművek bevezetésre kerültek, az saját mérőórákkal felszerelt.

Az ingatlan paraméterei:
i. Földszint:
1. Irodahelyiség: 22,3 m2
2. Kézmosó: 1,58 m2
3. Tusoló WC: 3,68 m2

1. Recepció (fogadótér): 19,11 m2

1. Közlekedő (teakonyha) 8,5 m2
2. Kézmosó:1,04 m2
3. WC: 1,03 m2
4. Lépcső: 1,8 m2

ii. Emelet:
1. Lépcsőház: 3,6 m2
2. Irodahelyiség: 20,94 m2

1. Irodahelyiség: 18 m2
2. Kézmosó, WC 1,42 m2

iii. Földszint és emelet összesen: 103 m2

Vásárlási előnyök:

Különösen alkalmas lehet a szolgáltatóipar számára, informatikai vállalatnak, pénzügyi szolgáltatónak, ügyvédi-, pályázatírói-, tervező irodáknak, oktatócentrumnak, utazási szolgáltató irodának, nagyobb könyvelő irodának, többcélú rendelőnek, kamarának, tervező és egyéb irodai tevékenységhez.
Vállalkozásfejlesztési Európai Uniós pályázatok /DIMOP, GINOP / megvalósítási helyszíneként kiváló, a területi elhelyezkedése, valamint a magasan képzett egyetemi szakemberek jelenléte okán.
A vendéglátás, de akár a szépségipar a belváros atmoszféra előnyeit kihasználva üzleti célú vásárlás is kiváló lehetőség, hisz a Kárász utca a Dugonics tér és a Szegedi Tudományegyetem közelsége garancia a biztos vendégkörre.
Kiskereskedelem a lokáció okán biztosan megtérülő és prosperáló befektetés, mint például gépjárműalkatrész, tartós fogyasztási, műszaki cikkek, de akár nemzeti dohánybolti értékesítésre.

Csongrád-Csanád vármegye, Szeged város (megyeszékhely). Lakónépesség 151 ezer fő, lélekszám alapján a Magyarországi városok közül a harmadik helyet foglalja el. A BYD (Build Your Dreams) a világ egyik vezető kínai elektromosautó-gyártója 2026 második felében indítja a gyárát Szeged városában. a BYD gyár 20 perc alatt könnyen elérhető a város fő útvonalain keresztül az ingatlanból.
Az üzem a tervek szerint évi 300 000 elektromos (BEV) és plug-in hibrid (PHEV) autót állíthat elő, közvetlenül az európai piacra, mely által Szeged az Európai városok közt nagy befolyásra tehet szert. A város a Dél-Alföld régió kulturális és gazdasági központja. A város az 5-ös, 55-ös, 47-es, 43-as főutak mellett az M5-ös és M43-as autópályákról is megközelíthető, amelyek csomópontja a település közigazgatási, és az ipari-, és logisztikai központ területének ÉNy-i részén található. A város rendelkezik nyugati elkerülő úttal, melynek száma 502.

Napjainkban a város a hazai tudományos kutatások (főként természettudományi és mérnöki) és a felsőoktatás egyik központja. 2014-2020 programozási időszakban létrehozásra került a szegedi lézerközpont: ELI-ALPS – Extreme Light Infrastructure Attosecond Light Purse Source nemzetközi kutatásokat szolgáló kutatási infrastruktúra, amelynek napjainkban is tervezettek infrastrukturális bővítései.
A Rheinmetall Advanced Technology Solutions Kft., 2025.-ben 29 MRD HUF-ból épült fel és nyitotta meg szegedi központját.
A város turisztikai potenciálját elsősorban az épített és természeti környezet, illetve a nemzetközi hírű rendezvényei alapozzák meg. A város „EUROPA NOSTRA” és „EURÓPA DÍJAT” kapott. Közvetlen környezetébe számos gyógy és wellness fürdő, valamint szálloda és turisztikai attrakció található.

A kereskedelem a regionális központ szerepköréhez mérten fejlett. A város infrastruktúrája jól kiépült.

Szeged határváros a Szerbiával szomszédos, mely további üzleti lehetőségeket biztosít a megvásárolt ingatlanhoz.